sales : leasing : management

'GROUND FLOOR RETAIL IN PRIME LOCATION - RETAIL LIQUOR LICENSE ATTACHED TO PREMISES'

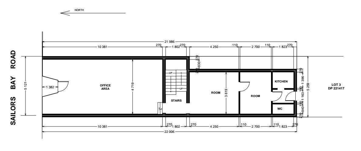
Highly sought after Northbridge location this Ground Floor shop offers;

* Functional ground floor retail area with floating timber flooring

* Kitchen/staff area

* Office or additional retail space

* Own amenities

* Off street parking for 4 Cars (tandem)

* Retail liquor license attached to the premises

* 90 sqm approx of lettable area

 

2
Address 140 Sailors Bay Rd, Northbridge
Price NegotiableTerms
Property Type Commercial
Property ID 166
Category Retail

Agent Details

Daniel Dekell photo

Daniel Dekell

0418 983 971
View Profile